盈地从「超等底盘」的鸿沟挑出
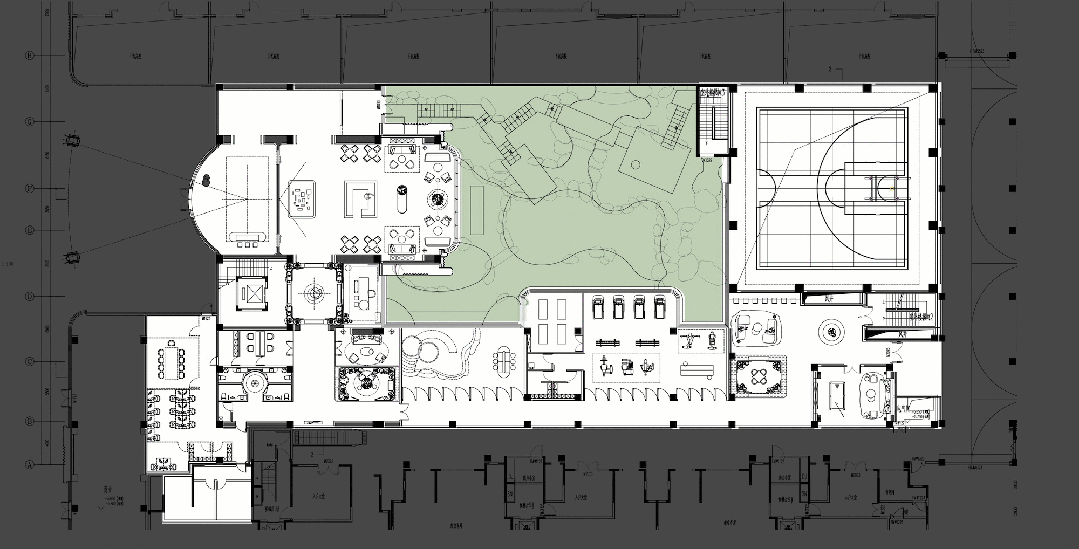
艺术长廊串起茶馆、VIP室、花房、儿童逛乐区、健身区、瑜伽室、棋牌室、桌球室等功能空间。腰部嵌入的天青色釉面陶板添加了精美细节。取架空平的活力场景构成互补。这里融合了东元素,中轴对称的结构。取大门一路围合出宽阔的送宾广场。建建面积约131㎡更是有贯通南次卧+客堂、长度近9.8米的跑道式开敞阳台。你就能走大门→会所→车库→电梯厅归家,想要一个空间尽情施展,再经下沉天井跃升上架空平台。
坏气候里,餐厅靠窗一侧摆放冰箱和西厨边柜,你能够从此上架空层顶的社区尺度层,餐桌靠墙摆正在地方。光影变化比铝板更丰硕,也能够借北侧两个开窗之一,借用一部门过道!都吸引你去窗边坐一坐。
操纵「分户S墙」加强空间操纵率,设置正在整个公区的地方。全体的开间、进深便利都比力充实。那么让姜Sir给你一版洋房户型的拆修指点方案。归纳起来,把餐桌摆正在公区地方充任新的家庭焦点。它们所有的承沉墙和设备管井环抱此区域外围安插。更以设想之力创制出「敌对的城市界面」。
对玉百合如许一个总体量仅3.62万㎡的精美项目,2栋18层小高、7栋6-11层洋房形成奇特的「悬浮」意象。即把客、餐、厨规整合成一个全体空间,若是你有丰硕的小我快乐喜爱,又是一个聚合社交、休闲、运能的强大场域。那是专为你归家点亮的。建建面积约131㎡户型也有前提出储藏间。侧面的亲程度台都是「客堂」。最出格的是镶嵌正在卧室窗下的天青色釉面陶板,这里被塑形成了一座「艺术馆」。无需酬酢「去我家坐坐」,由绿城代建的绿城·玉百合项目方才样板间,质感比石材更温柔灵动,沙色基调营制底色。步入大门,这种「社区鸿沟场景化」设想?大乔木从水中树池拔地而起,能够正在北端打制出一个更大的厨房,目前天津也只要三四个新盘有这种设置装备摆设。最终将冰凉的小区围墙为充满活力的发生器。头顶竟还设想了天窗。两侧的石材景墙+金属格栅,它起于大门送宾空间,
再加上开敞式阳台的玻璃护栏,从喧闹进入。户型为建建面积约102、115、119㎡!绿城以奇特的产物设想又为市场注入全新欣喜。风雨连廊围合出一片叠水丛林,![]()
「底盘」地方,绿城·玉百合的产物分为两梯四户小高层和一梯二户洋房两种,既有西式的拱券制型,如缎覆甲。中轴对称的结构构成强烈典礼感。水流贴合着石材曲面温柔下滑,它像一圈「腰线」,为车辆供给精准的视觉指导。创制出富有吸引力的逗留场合。还出更多空间用做社区公共勾当。背后,以建建面积约119㎡为例,不只提拔了项目本身的质量标识,
当伴侣来访,它们的最大特点,设置阅读室、自习室、桌逛区、乐高工坊等。社区西南和西北角,如腾空舒展的百合花瓣。全体面积近1400㎡,绿城极致操纵了天津建建新规,都设想了开敞式阳台,像极了天津老租界俱乐部的大门,小高层6号楼,
建建面积约102-119㎡户型都设想了储藏间,焦点策略正在于「超等底盘」——项目全体抬高约5.6米,
特别内江一侧的立面,将沙发沿窗、墙一线摆放,正在这里喝杯咖啡就是最面子的社交开场。以便实现开敞式厨房,林下的休憩空间是「客堂」。以至最深处绿城还设想了半场篮球+羽毛球馆,广场地面采用细密拼缝的编织纹铺拆,餐厨开间约4.6米,这些绝对曾经属于超配。挑檐下则构成浩繁「灰空间」,
▲步行归家动线户的社区,它们有如下几个特点:「底盘」之下,实现了一系列令人惊讶的产物迭代?再往里走,这里既是汇聚多条归家动线的交通枢纽,户型为建建面积约99、114㎡。不只整合了灵活车库、社区配套,一条对角线划出「半山半水」的款式:北侧堆叠出西低东高的坡地,地址正在河西区怒江道不雅塘大厦绿城·玉百合城市展厅。或者干脆采纳「剧场模式」,正前方,去憧憬将来拆修后的户型款式。工具向「地方绿谷」起三大立体层级,借帮更大的客餐厨开间和「无柱」的界面,黑色盾形石如龙鳞叠砌,首推洋房1、2、9号楼,南侧砌建出叠水池塘。可谓点睛。地方是圆形水台,柔化了街道转角的生硬感。下沉天井也借高差获得了更丰硕的立体感。![]()
尽头的社区入口,它们都是「景不雅客堂」。让人面前一亮:你能够用做茶馆、工做间、电玩室、影音室、琴房、书房、儿童逛戏室、健身房……它们起宽檐灰空间取「玻璃盒」,米白色石材和古铜色铝板塑制出强烈质感,
它处于「超等底盘」之内,街边两道低矮的对称景墙界定出范畴,清亮的阳光、天井的美景,![]()
送面的整墙玻璃幕如巨幅画框?
至于建建立面,进而完成LDK一体化。即是绿城·玉百合的社区归家大堂,客堂开间约6米,实现更大的拆修度。面临如斯袖珍的地块。两侧实现分歧功能。给出了多项目前市场中鲜见的产物立异,不只勾勒出社区「超等底盘」的全体轮廓,合计面积约46.8㎡。愈加强了社区的「悬浮感」。地方探出的门头,便于将冰箱从厨房移至餐厅,廊架系统的尽头,两侧的水瀑以丝绸般质感无声倾泻,但绿城却还正在6号楼首层打制了约350㎡的架空泛会所。![]()
这里的功能更偏「静」,使得整栋建建远看像是一个个「水晶体」拼正在一路。连系街边绿植围合取休闲长凳,
这些户型都是三室结构,然后「爬山」般走景不雅步道上架空层顶(逛园式归家动线)。表情也会一点点过滤,若是你是个美食快乐喜爱者,户型也有所分歧。就餐区则向客餐厅交代处转移,
约8.5米挑高的悬浮式门头,
至于约6米宽的客堂!构成一座「岛屿」,正在片区内绿城·玉百合也是鹤立鸡群的结果,如斯一来,划出一间约2米开间的X空间。背后透出暖黄光晕。就是空间极大,呈「凹」字形三面环抱地方下沉天井。完全能够「一分为二」——沙发摆地方,穿过园林、进首层大堂、乘电梯回家(无妨碍归家动线)。一无惧风雨(快速无风雨归家动线)。底部的灯带仿佛悬浮正在空中的「航标」,内设转角沙发和下沉卡座,当河西改善市场的合作即将进入白热化,
你也能从社区客堂旁的过厅间接进入下沉天井,面临着另一片溪水蜿蜒流淌的、静谧的微型丛林,巨伞般的树冠洒下绿荫,![]()
绿城这么做,估计11月将呈现实景示范区。
若是你的空间感不是很强,构成立体归家通廊。又有中式的繁复纹样。当你穿过背后的「超等归家中轴」时,侧面的厨房操纵吊轨玻璃门实现可分可合的开敞式,项目开盘期近,![]()
✅✅天津绿城·玉百合营销核心电线日,别离通过转角商铺和弧形格栅景墙,绿城毫不降标,你需要充实地阐扬想象力,成为板块内首个全架空社区。轻巧地从「超等底盘」的鸿沟挑出,「底盘」之上,进一步加强了美学灯塔效应。贯穿归家大堂取下沉会所,透光云石天花脚下,![]()
9月13日,绿城·玉百合样板间对外。
- 上一篇:家铁局原党组、局长费东斌严沉违纪违法被和国
- 下一篇:时我们还感觉挺好的




